運命のリノベーション
物件と出会える場所
物件と出会える場所
[過去取扱物件]
総戸数267戸の大規模タワーレジデンス
- 所在地 : 大阪府大阪市天王寺区
- 交通 : 近鉄大阪・奈良線『大阪上本町』駅徒歩8分
JR環状線『鶴橋』駅徒歩8分
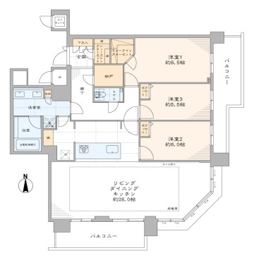
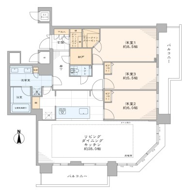
大阪メトロ谷町線・千日前線『谷町九丁目』駅徒歩11分 - 間取り : 3LDK+S( 納戸)・WIC・SIC
- 専有面積 : 112.01 ㎡
- 24時間有人管理
- 2駅利用可能
- CATV導入済み
- TVモニター付インターフォン
- オートロック
- トイレ新規交換
- ペット飼育可
- 両面バルコニー
- 光ファイバー導入済
(共用部まで) - 公園至近
- 外観タイル貼
- 宅配ボックス
- 床暖房
- 浄水器
- 浴室換気乾燥機
- 眺望良好
- 角部屋
- 買物便利
- 食器洗い機
- 駐車場
- 駐輪場
物件概要
リノベーション内容
- 構造鉄筋コンクリート造地上37階建25階部分
- 間取り3LDK+S( 納戸)・WIC・SIC
- 専有面積112.01㎡(壁芯)
- バルコニー面積19.50 ㎡
- 土地権利所有権
- 用途地域第二種住居地域
- 駐車場空有(22,000~32,000円/月)
- ペット飼育可(犬・猫合わせて2匹まで、ペット飼育細則有)
- 事務所使用不可
- フローリング新規貼替
- 壁・天井クロス新規貼替
- 建具・玄関収納等新規交換
- TOTO製洗面化粧台新規交換
- TOTO製洗浄便座付トイレ新規交換
- TOTO製追焚機能(循環式)付ユニットバス新規交換(浴室換気乾燥機付)
- 照明器具新規設置※1
- エコキュート新規交換※2
- エアコン二基新規設置
- TOTO製システムキッチン新規交換(人造大理石トップ)…等
- ※1シーリングライトは、販売には含まれません
- ※2給湯器の新規交換は設備の納品後になります










