サンマンションドゥーシェ室町冷泉町 701号室|京都府京都市
物件の価値を磨き上げた
リノベーション住宅
リノベーション住宅
サンマンションドゥーシェ室町冷泉町 701号室
価格21,990万円
月額ローンのシミュレーション
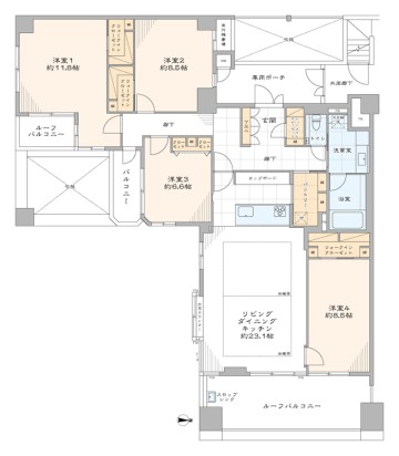
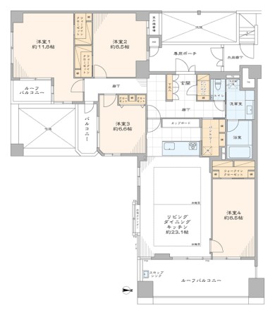
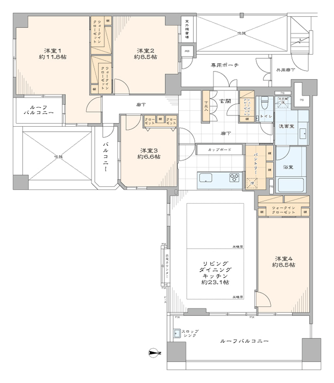
- 専有面積141m²を超える大型4LDK
- ペット飼育可(飼育細則有)
- 五山送り火(大文字)を望む眺望
- 所在地 : 京都府京都市中京区室町通二条上る冷泉町58
- 交通 : 地下鉄烏丸線『丸太町』駅徒歩4分
地下鉄烏丸線・東西線『烏丸御池』駅徒歩6分 - 間取り : 4LDK+3WIC+SIC
- 専有面積 : 141.55 ㎡
当物件を
スマホで
チェック!!
- 2駅利用可能
- CATV導入済み
- TVモニター付インターフォン
- オートロック
- トイレ新規交換
- ペット飼育可
- ルーフバルコニー
- 光ファイバー導入済
(共用部まで) - 外観タイル貼
- 宅配ボックス
- 床暖房
- 最上階
- 浄水器
- 浴室換気乾燥機
- 眺望良好
- 角部屋
- 食器洗い機
- 駐車場
- 駐輪場
物件概要
リノベーション内容
- 構造鉄筋コンクリート造地上7階建7階部分
- 間取り4LDK+3WIC+SIC
- 専有面積141.55㎡(壁芯)
- バルコニー面積4.53 ㎡
- 築年月2003年(平成15年)年2月
- 総戸数37戸
- 土地権利所有権
- 用途地域近隣商業地域
- 現況空室
- 引渡日即可
- 駐車場空有(21,000円/月)
- ペット飼育可(犬・猫合わせて1匹、小動物飼育細則あり)
- 事務所使用不可
- 管理費19,800円/月
- 修繕積立金23,360円/月
- 管理形態全部委託管理(日勤)
- 管理会社㈱東急コミュニティー
- 施工会社矢作建設工業㈱
- 旧分譲会社三交不動産㈱
- 設備都市ガス・公営水道・本下水・EV・オートロック・宅配ボックス
- 備考駐輪場:空有(300~600円/月)
バイク置場:空無(1,000円/月)
インターネット(NTT・KDDI) ・ CATV(J:COM)
修繕積立金総額:41,027,073円(R6年10月現在)
固定資産税・都市計画税:274,509円(R8年度概算)
ポーチ面積 : 8.96m²
ルーフバルコニー面積 : 22.65m²
ルーフバルコニー使用料 : 800円/月 - 修繕履歴令和 4年 7月 インターホン設備機器更新工事
平成27年12月 大規模修繕工事
- フローリング新規貼替
- 壁・天井クロス新規貼替
- 建具・玄関収納等新規交換
- TOTO製洗面化粧台新規交換
- TOTO製洗浄便座付タンクレストイレ新規交換
- TOTO製追焚機能(循環式)付ユニットバス新規交換(浴室換気乾燥機付)
- 田中工藝製システムキッチン新規交換(食器洗い機付)
- エアコン一基新規設置
- 床暖房マット新規交換
- 照明器具新規設置※1
- 給湯器新規交換※2…等
- ※1シーリングライトは、販売には含まれません
- ※2給湯器の新規交換は設備の納品後になります
Google Maps Loading...
- 所在地 : 京都府京都市中京区室町通二条上る冷泉町58
- 交通 : 地下鉄烏丸線『丸太町』駅徒歩4分
地下鉄烏丸線・東西線『烏丸御池』駅徒歩6分






































