運命のリノベーション
物件と出会える場所
物件と出会える場所
[過去取扱物件]
3路線利用可・地上14階建て高層マンション
- 所在地 : 大阪府大阪市天王寺区
- 交通 : 近鉄大阪線『大阪上本町』駅徒歩7分
大阪メトロ谷町線『谷町九丁目』駅徒歩8分
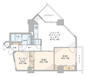
大阪メトロ千日前線『鶴橋』駅徒歩8分 - 間取り : 2LDK+S(納戸)
- 専有面積 : 68.48 ㎡
- CATV導入済み
- TVモニター付インターフォン
- オートロック
- トイレ新規交換
- トランクルーム
- 光ファイバー導入済
(共用部まで) - 外観タイル貼
- 浄水器
- 浴室換気乾燥機
- 角部屋
- 買物便利
- 食器洗い機
- 駐車場
- 駐輪場
物件概要
リノベーション内容
- 構造鉄骨鉄筋コンクリート造地下1階地上14階建10階部分
- 間取り2LDK+S(納戸)
- 専有面積68.48㎡(壁芯)
- バルコニー面積5.53 ㎡
- 土地権利所有権
- 用途地域商業地域・第二種住居地域
- 駐車場空有(24,300円/月)
- ペット飼育不可
- 事務所使用不可
- フローリング新規貼替
- 建具・玄関収納等新規交換
- LIXIL製洗面化粧台新規交換
- TOTO製洗浄便座付トイレ新規交換
- TOTO製ユニットバス新規交換(浴室換気乾燥機付)
- LIXIL製システムキッチン新規交換(食器洗浄乾燥機付)
- 壁・天井クロス新規貼替
- 照明器具新規設置 ※シーリングライトは、販売には含まれません
- エアコン一基新規設置…等




































