リノベーション事例とお客様の声のご紹介
- 工事費1,860万円
- 間取り2LDK+WIC
- 所在地東京都新宿区
- 専有面積64.26㎡
- 家族構成ファミリー
- 築年月昭和55年11月
-
リノベーションに物件情報を検索する
ぴったりの物件を知りたい方は -
豊富な写真付き無料で資料を見る
リノベーション事例を見たい方は -
具体的に考えるなら「イベント・無料セミナー・イベントに参加する
セミナー」に参加がおすすめ
- 1住み慣れた大好きな街で、中古を買ってリノベーション同じエリアの賃貸マンションに約6年間お住まいだったIさまファミリー。住み慣れたこのエリアが大好きで、娘さんが保育園に通い始めたこともあり、「保育園を変えずに、できるだけ近くで」との思いから、コロナ禍の前から少しずつ物件を探していたそうです。
「リノベーション済みの物件もいくつか見ましたが、なかなか自分たちの理想に合うものがなく、いいなと思う物件はすぐに決まってしまって。私たちは最初からフルリノベーション前提で中古マンションを探しており、エリアもかなり絞っていたため、条件に合う物件をひたすらチェックしていました。このマンションは、以前から『かわいい雰囲気のマンションだな』と気になっていたので、売り出されているのを見つけてすぐにマイリノの営業担当へ連絡しました。内見したその日に申し込み、ほかに2組と競合しましたが、営業担当が私たちの希望や状況を売主さんに丁寧に伝えてくださり、無事に購入できました。」(Iさま)
物件が決まり、リノベーションは迷わずマイリノ一択でご依頼いただくことに。こうして、理想の住まいづくりがスタートしました。 - 2色と質感のバランス、掃除のしやすさがテーマ

Pinterestで気になる写真を集め、理想のイメージをPowerPointにまとめて設計士に共有されたというIさま。いろいろな住まいを見ていく中で「自分たちはこういう雰囲気が好きなんだ」と気づかれたそうです。
目指したのは、“ピンとしすぎず、でもあたたかくなりすぎない"絶妙なバランス。全体のカラーを白・木・グレーで統一し、あえて黒は使わず、ツヤとマットの質感も意識して自然な雰囲気に仕上げました。
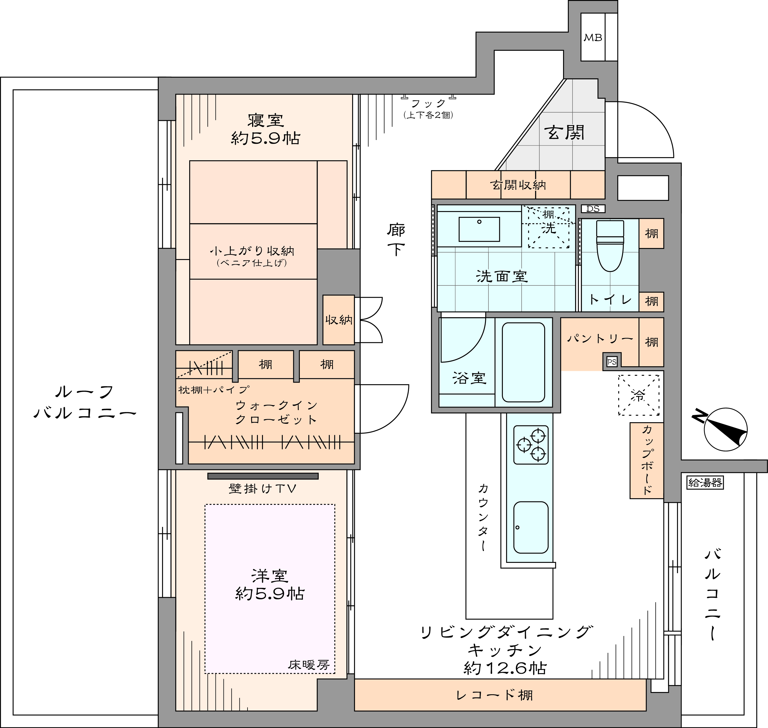
玄関から目を引くのは、ご主人こだわりの造作レコード棚です。1つの棚に約100枚のレコードが収まり、前の住まいから持ってきたお気に入りを厳選して収納しています。棚板に合わせ、壁に掛けた絵画のフレームも同色で統一。前の住まいで寝室に置いていたレコードをリビングと一体の空間に移したことで、音楽がより身近に感じられるようになりました。
キッチンは奥さまのこだわりが詰まった空間です。造作のL字カウンターは前の住まいで使っていたテーブルの脚を再利用し、腰壁は優しいグレーのモールテックス仕上げに。手元が隠れることで空間がすっきり見え、お気に入りのポイントだそうです。構造上、動かせない柱があるスペースは、棚やフック、マグネットボードを設けてパントリーとしました。
「キッチンにいる時間が長いので、家の真ん中にキッチンを置き、明るく開放的にしたいとお願いしました。デザインは、近所にあるお気に入りのレストランをオマージュしています。ワークトップの高さも少し高めにして調理がしやすくなり、お手入れも簡単でとても快適です。前の家ではキッチンが孤立していたので、今の明るく風通しのいい空間は本当に気持ちがよく、昼間は照明がいらないほどです。」(Iさま)
玄関は、上がり框を斜めにカットすることで3人並んで靴が履ける広さに。壁に4本のフックを設け、上着やバッグを掛けられる便利な工夫も。大容量のシューズボックスは木と白の配色バランスにこだわり、面材を木目にすることで、あたたかみのある印象に仕上げました。
寝室には、ベッド兼用の小上がり収納を造作。季節の飾りや思い出の品をまとめてしまえるサイズです。「寝室にはなるべく家具を置きたくなかったのと、ベッドの下にほこりが溜まることも気になっていたので、造り付けにしたことで収納を確保しつつ掃除もしやすく快適」とIさま。
WIC(ウォークインクローゼット)は服の高さに合わせてパイプを配置し、収納効率を最大化。前の家では7帖の部屋をすべて洋服部屋にしていたそうですが、お引っ越しをきっかけに「収まる分だけ持つ」ことを意識し、不要なものを整理されたそうです。見やすい収納で、持ち物の管理もしやすくなりました。
「設計士さんが本当に丁寧に考えてくださって、生活のパターンを具体的に想像できる提案ばかりでした。どこをポイントに選ぶとよいかを、その都度アドバイスしてくださったので迷わず進められました。本当に感謝しています。」(Iさま) - 3家族との時間が増え、帰宅するのが楽しみに

お引っ越ししてからはライフスタイルが変わり、家族と過ごすひとときをより大切にされているというIさま。
「前の家も大好きでしたが、今は帰宅するのが楽しみになり、家族とゆっくり過ごす時間が増えました。引っ越しでは思い切って多くの物を手放し、持ってきた物よりも捨てた物の方が多いかもしれません。以前は無尽蔵に買っていた本も、この棚に収まるかどうかを考えて選ぶようになりました。物が減ったことで空間が広くなって気持ちもすっきり。体調も良くなったように感じています。」(Iさま)
新しい住まいでの暮らしは、空間だけでなく心にもゆとりをもたらしてくれたようです。自分たちらしく整えた家で、穏やかで心地よい時間がこれからも流れていくことでしょう。
-
マイリノ担当者からのコメント
理想の間取りを実現できる物件探しに少し時間はかかりましたが、無事に良いご縁があり本当によかったです。設計担当のアイデアも加わり、Iさまご夫妻の明るいお人柄にぴったりの、明るく素敵な空間に仕上がりました。お洋服をたくさんお持ちとのことで、クローゼットはアパレルショップのクロークのように収納量たっぷりに。これからも笑顔の絶えない暮らしをお過ごしください。(営業担当)
お互いの意見を尊重し合いながら、理想の形をつくり上げていくご夫妻の姿が印象的でした。現場では細部まで丁寧にご相談いただきながら進め、完成したときには、こだわりがいいバランスでまとまったと感じました。時を重ねるほど味わいが増す素材を採用しているので、これからの暮らしの中でエイジングを楽しんでいただけたら嬉しいです。(設計担当)
リノベーション内容
- フローリング・フロアタイル新規施工
- 壁・天井クロス新規施工
- 建具新規設置
- システムキッチン新規設置
- ユニットバス新規設置
- 造作(洗面化粧台、レコード棚、カウンターテーブル、カップボード、小上がり収納)
- 照明器具新規設置
- ハウスクリーニング …等
気になることがあればお気軽にお問い合わせください。リノベーションアドバイザーが何でもお答えいたします。(10:00-19:00)
オススメの事例
-
- 静かな環境と利便性。理想的な立地に佇む、暮らし方に合わせた広いお家
東京都世田谷区
間取り:4LDK+ 書斎
- 静かな環境と利便性。理想的な立地に佇む、暮らし方に合わせた広いお家
-
- 光あふれるナチュラルリビング
東京都港区
間取り:3LDK+納戸+WIC・SIC
- 光あふれるナチュラルリビング
-
- RE : Apartment UNITED ARROWS LTD. CASE002 / PLAN B
東京都港区
間取り:2LDK
- RE : Apartment UNITED ARROWS LTD. CASE002 / PLAN B
-
- 広々としたルーフバルコニーのあるお部屋を自分仕様にカスタマイズ
東京都荒川区
間取り:2LDK
- 広々としたルーフバルコニーのあるお部屋を自分仕様にカスタマイズ
テーマ:おしゃれの事例
-
- 素材と色で整える、ふたりの暮らし
大阪府
間取り:2LDK+WIC
- 素材と色で整える、ふたりの暮らし
-
- 神楽坂と暮らす
東京都新宿区
間取り:1LDK+WIC
- 神楽坂と暮らす
-
- インダストリアルな大人リノベ
神奈川県川崎市
間取り:1LDK
- インダストリアルな大人リノベ
-
- 光あふれるナチュラルリビング
東京都港区
間取り:3LDK+納戸+WIC・SIC
- 光あふれるナチュラルリビング








































