運命のリノベーション
物件と出会える場所
物件と出会える場所
[過去取扱物件]
南東角部屋につき陽当たり・通風良好
- 所在地 : 東京都足立区
- 交通 : JR常磐線・東京メトロ日比谷線・東京メトロ千代田線・東武伊勢崎線つくばエクスプレス『北千住』駅徒歩9分
JR京成本線『京成関屋』駅徒歩7分
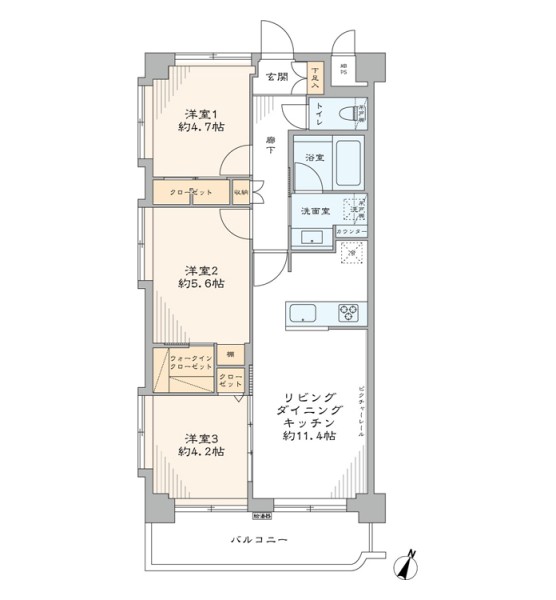
東武伊勢崎線『牛田』駅徒歩7分 - 間取り : 3LDK+WIC
- 専有面積 : 60.50 ㎡
- 2駅利用可能
- トイレ新規交換
- 浴室換気乾燥機
- 角部屋
- 買物便利
- 食器洗い機
- 駐車場
物件概要
リノベーション内容
- 構造鉄筋コンクリート造地上5階建4階部分
- 間取り3LDK+WIC
- 専有面積60.50㎡(壁芯)
- バルコニー面積7.65 ㎡
- 土地権利所有権
- 用途地域準工業地域
- 駐車場空有(15,000円/月)
- ペット飼育不可
- 事務所使用不可
- フローリング新規貼替
- 給水管・給湯管新規交換(専有部)
- 建具・玄関収納等新規交換
- Panasonic製洗面化粧台新規交換
- TOTO製洗浄便座付トイレ新規交換
- LIXIL製ユニットバス新規交換(浴室換気乾燥機付)
- LIXIL製システムキッチン新規交換(食器洗い機付)
- 壁・天井クロス新規貼替
- 照明器具新規設置
- エアコン一基新規設置
- 給湯器新規交換(追焚式)…等









































